You are using an outdated browser. For a faster, safer browsing experience, upgrade for free today.
  • What is MVHR?

    Mechanical ventilation with heat recovery allow incoming air to be warmed by outgoing air through a heat exchanger, therefore avoiding heat loss through the ventilation system. These systems are becoming increasingly popular due to increasing energy costs, and a desire to build more energy efficient homes. We are pleased to be able to offer a full installation service for these highly efficient ventilation solutions.

    Installing a Mechanical Ventilation with Heat Recovery (MVHR) system will help you to comply with Building Regulations Part F & L and also maintain healthy levels of air quality in a modern energy efficient home.

    how mvhr works
  • Design, Supply, Install & Commission

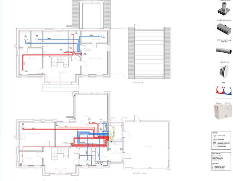
    mvhr design drawings

    We can design, supply, install and commission your MVHR system , using either radial or branch ducting, which will meet your needs and that of building control.

    So if you want to benefit from improved air quality and better energy efficiency then please contact us today to find out more.

    Our early involvement in your project is essential for the smooth installation of the system, which will enable us to design and install a well balanced efficient ventilation system.

    Please click below to send us your plans and take advantage of our free no obligation quote service.

    get a free quote